Centro Cultural dos Correios
Em outubro de 1996, os Correios lançaram um concurso com a perspectiva de reciclagem da Agência Central, situada no Vale do Anhangabaú, em São Paulo. Para o edifício projetado pelo escritório Ramos de Azevedo sob a responsabilidade do arquiteto Domiziano Rossi, inaugurado na segunda década do século XX, a perspectiva era de manutenção dos serviços do correio, porém como uma agência da rede e não mais a central, criando, essencialmente, um espaço voltado à cultura.
O concurso foi proposto em duas fases, a de Estudo Preliminar e a de Anteprojeto, com apresentação em sessão pública e escolha da proposta mais adequada. Com o restauro dos Correios, o edital propunha a participação na revitalização do centro de São Paulo e colocava, como tema, a especificidade de um edifício histórico, tombado e referencial, localizado no coração do centro da cidade.
O edifício dos Correios tornou-se público essencialmente pela sua representação arquitetônica. O novo projeto propõe torná-lo público agora por sua condição urbana. A transformação física de seus significados não se daria apenas a partir do valor histórico, mas a partir de uma situação urbana articulada pelo edifício. O objeto isolado passaria, pelo projeto, a ser parte vital de um território de maior abrangência pela introdução de um novo espaço público, que multiplicaria e potencializaria as possibilidades de uso.
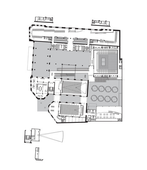
A agência de correios deveria continuar com área destinada a seu funcionamento, mas somada aos novos espaços de praça, auditórios, cinemas e teatro experimental. A variação altimétrica entre o Largo do Paissandú e o Vale do Anhangabaú possibilitou a inserção do teatro em uma caixa resultante dessa diferença de nível, projetado para ter flexibilidade que permitisse combinações variadas de palco e plateia. Esse teatro viabilizaria os mais diferentes usos, sem acrescentar “nova arquitetura” ao edifício, já de destaque, dos Correios.
Reconhecemos que a área de estudo não é só de uso específico (agência): para a cidade é um território legitimado pela apropriação. Um valor simbólico e de vida cotidiana do centro histórico. Esse conceito envolve, também, a definição dos espaços — sejam eles construídos ou vazios — e suas qualificações. Ou seja, o edifício não é a figura de um fundo urbano, mas ambos se articulam e interdependem. Adotamos a posição do projeto como desdobramento das análises do lugar e do drama dado pela vivência. Um outro significado para além da ideia de ordem, de uma intervenção “redentora”.
Arqueologia do edifício existente
Como marcos da história de transformação do edifício dos Correios, o edital já dava destaque aos anos 50 e 70, momentos em que reformas foram feitas com perspectivas à adaptação, às mudanças de uso e às novas necessidades, descaracterizando alguns espaços internos. Algumas das alterações foram a execução de um mezanino entre o térreo e o 1° pavimento, o fechamento de “rasgos” na laje, que possibilitavam iluminação zenital e a modificação das aberturas (as esquadrias foram executadas, originalmente, pelo Liceu de Artes e Ofícios). Resgatar e alterar, conforme necessário, era tarefa colocada pelo concurso, dada a necessidade de transformar um equipamento de serviço em um edifício que abrigasse atividades culturais.
O espaço mais significativo e central, considerando acessos, área e sistema estrutural, foi destinado à grande praça, articulada ao beco do Piolin (Rua Abelardo Pinto, nível Paissandú). Ligados a ela, estão os auditórios, a praça do nível Anhangabaú – com área de cinema ao ar livre -, o teatro flexível e a própria agência, agora reduzida a uma área menor, junto à Av. São João. As transformações e inserções propostas, considerando as adaptações programáticas, foram pensadas a partir de elementos mínimos e neutros, com valorização discreta de detalhes originais.
Desmaterialização
As fachadas frontais foram mantidas ao longo do tempo, com algumas alterações. As posteriores, em compensação, foram totalmente alteradas. Sua “desmaterialização”, sugerida pela proposta, permitiria uma recomposição considerando novos programas e acessos urbanos: assim foram pensados o vazio da praça interna, o teatro, o espaço resultante da diferença de cotas e os planos verticais (fachadas posteriores), agora transparentes, alterando a percepção do volume total.
Local:
São Paulo, SP
Data:
1997
Cliente:
Empresa Brasileira de Correios e Telégrafos
Concurso:
Concurso Nacional, Finalista
Área de intervenção:
16.000 m²
Arquitetura e Urbanismo:
VIGLIECCA&ASSOC
Hector Vigliecca, Luciene Quel, Rita Meirelles, Beatriz Corrêa, Ricardo Dourado, Paulo Serra, Luci Maie
Arquitetura cênica:
José Carlos Serroni
Assessoria de projeto legal:
Castroviejo e Leite Arquitetos Associados
Assessoria de engenharia:
MHA Engenharia – Eng. Eduardo Luiz de Brito Neves, Eng. Ugo Tedeschi, Eng. Shyoji Ikeda
Elevadores e escadas mecânicas:
Eng. Francisco Nascimento
Restauro:
Polypav – Gepas
Perspectivas:
Fernando Piriz
Maquete:
Andre Aaltonen
Fotos:
Camera Press




















Imagens