Biblioteca Pública do RJ
Pensada como um centro de documentação e de coordenação das bibliotecas públicas municipais, mas também como um equipamento de atendimento aos estudantes de todos os níveis, a Biblioteca Pública do Rio de Janeiro integraria o projeto maior do Corredor Cultural, em que se pretendia preservar e revitalizar zonas de interesse histórico do centro da cidade. Em área dotada de construções ecléticas do século XIX e início do XX, o projeto da biblioteca deveria buscar relações significativas com esse contexto histórico e urbano.
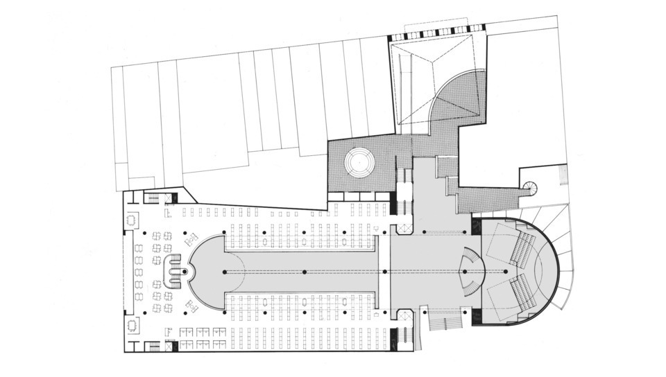
A implantação da biblioteca parte da diferença de situação urbana (e de escala) entre as duas ruas que o edifício conecta (eixo norte-sul): a Av. Presidente Vargas e a Rua da Alfândega. A frontalidade que se cria voltada à avenida é mais formal e o acesso à biblioteca se dá com uma diferença de nível. Do lado oposto, pela Rua da Alfândega, o acesso é local e acontece por meio de uma pequena rampa, como continuidade da calçada. Essa diferença, dada pela escala urbana, é reforçada no espaço interno: junto à Presidente Vargas, o hall de acesso tem pé direito de maior dimensão e luz indireta. Pela rua posterior, uma praça interna, com volumetria e estrutura de cobertura assemelhando-se às das edificações vizinhas, reforça o caráter local.
O auditório proposto, como programa complementar, justapõe-se à igreja com que faz divisa: além de se possibilitar circulação livre, independente do controle da biblioteca, conforma-se uma sequência de usos públicos, ligados aos rituais e espetáculos.
A “rua interna” (do hall à praça) permite acesso independente e usos em horários diversos dos da biblioteca, viabilizando as atividades do cinema, do teatro, da leitura livre, do café, das associações e dos debates. Ela é irregular, dado o seu ajuste às edificações vizinhas existentes e à própria geometria da quadra. O eixo leste-oeste, estruturador do espaço e da distribuição programática da biblioteca propriamente dita, articula áreas de armazenagem e estar, “terraços” voltados ao vazio central.
A cobertura é um tema que demarca os diferentes espaços, programas e ajustes à quadra, dados pelo projeto. Caracteriza o hall central com iluminação pelos sheds, a biblioteca infantil (cúpula) e o acesso pela Rua da Alfândega (volumetria semelhante às das divisas).
Quarteirão como massa construída
Recompor um quarteirão do centro histórico é mais que preencher os vazios com novos programas. Recompor, nessa proposta, significou conformar frontalidades, alinhamentos e volumetrias, para além da questão compositiva: significou construir território, a partir mesmo das articulações propostas e da dimensão pública recriada.
O vazio — dado pelas circulações e rua interna — é tão estruturador quanto a área construída, que abriga os programas da biblioteca e de apoio. Auditório, café e sala de leitura livre podem funcionar independentes dos horários e do controle da biblioteca, animando o uso da rua interna.
Local:
Rio de Janeiro, RJ
Data:
1984
Cliente:
Secretaria de Estado de Ciência e Cultura, Departamento de Cultura, Instituto Estadual do Livro
Concurso:
Concurso Nacional
Área de intervenção:
4.530 m²
Área construída:
15.340 m²
Arquitetura e Urbanismo:
Héctor Vigliecca, Roberto Terlizzi, Rodolpho Magalhães
Colaboradores:
Antônio Carlos Sant’Anna Junior





















Imagens