Porto Olímpico
A perspectiva do concurso para o Porto Olímpico era a de discutir propostas para as instalações de apoio aos jogos junto à área portuária da cidade do Rio de Janeiro, prevendo alojamentos para imprensa, árbitros, um hotel e um centro de convenções. Recomendava-se que os projetos considerassem o desdobramento de uma possível intervenção como essa no entorno imediato.
Avaliamos que os projetos urbano e de arquitetura podem ser capazes de implementar transformações e contribuir à vitalidade de áreas da cidade, principalmente numa escala como a colocada por este concurso. Entretanto, consideramos que projetos como esse não podem transformar as áreas de implantação em um enclave de isolamento.
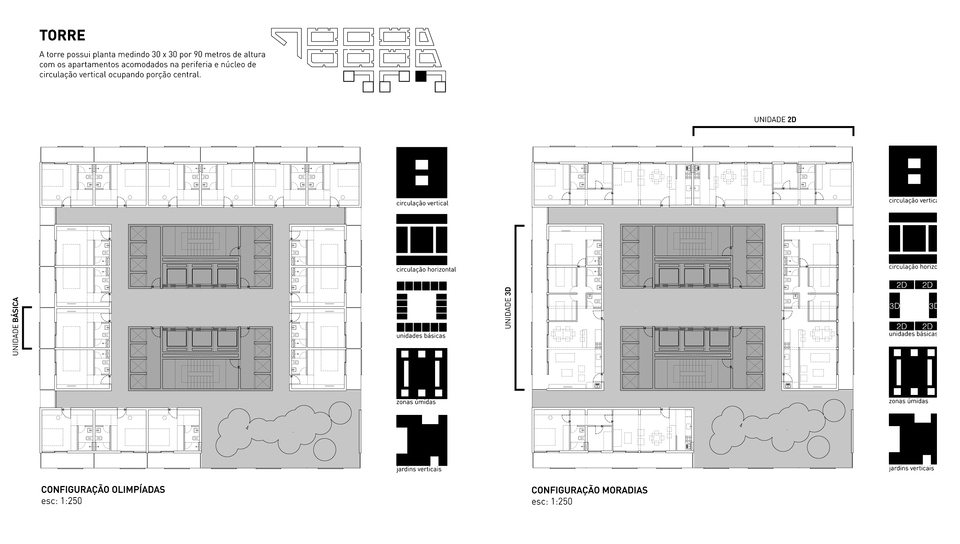
A implantação se deu a partir de três situações programáticas e morfológicas: a área de habitação é uma delas, e corresponde à maior parcela, definida a partir da quadra de ocupação perimetral e das torres, que fazem a transição com o parque proposto. Aqui, as tipologias habitacionais foram concebidas como transformáveis após as Olimpíadas, para que se adaptassem às famílias e ao uso cotidiano.
A outra área, caracterizada como a de centralidade, abrigaria hotel, centro de convenções e todo o aparato administrativo de apoio ao evento, os equipamentos de exceção e de escala metropolitana.
Articulando as duas e vencendo as barreiras da Av. Francisco Bicalho e do Canal do Mangue, conectando as áreas habitacionais e criando urbanidade para a vida cotidiana, aparecem as estruturas de transposição: passarelas, praças, pátios, passeios, parques e espaços culturais, caracterizados como conectores urbanos e espaços públicos fortemente reconhecíveis e que articulariam diretamente os dois conjuntos propostos, compondo parte da estrutura de mobilidade e lazer de toda a região.
A proposta apresentada pode ser entendida como um motor de urbanidade para a região, partindo da combinação ponderada entre as escalas dos novos edifícios com o entorno construído existente, com a geografia e a paisagem características deste trecho da cidade, sugerindo equipamentos públicos que possam expandir seu uso para a requalificação de toda a área da Operação Urbana e seu entorno, com conexões legíveis e não excludentes.
Centro de convenções e espaço de exposições
O Centro de Convenções está concebido como ponto focal, de grande massa construída, para quem se dirige à Zona Sul desde o mar. Está integrado ao hotel e a ele se tem acesso pela praça, pela Av. Francisco Bicalho e pela passarela que transpõe o canal.
Vazio consistente: praça da centralidade
É o espaço urbano de uso público que reúne e integra as atividades das mais significativas funções desta intervenção e está dimensionado e interligado com a estrutura pública do entorno.
O nível da praça se desdobraria em três dimensões, abrigando locais de encontro, espetáculos ao ar livre, exposições, áreas de bares etc.
Interligação: uma nervura urbana
A passarela, concebida como uma nervura urbana, vincula os nós de conexão de pedestre da estrutura pública existente e proposta. Restabelece, como uma sutura, a conexão fraturada pela Av. Francisco Bicalho, articulando a rodoviária e o novo parque sobre a Rua Marechal Hermes, dando legibilidade à ligação entre a Praça da Centralidade e o parque da área residencial. Inclui, ainda, uma esteira rolante coberta, ciclovia, alargamentos, mirante e vegetação.
Moradias-Parque
Esta área está concebida sobre uma malha de 80 × 50 m com pátios internos de uso coletivo. A fachada para a Rua General Luiz Mendes de Moraes define-se como um eixo comercial e de serviços, que acontecem nos térreos dos edifícios. As novas torres de 90 m de altura estariam localizadas na intersecção da malha com o parque, construindo uma interface.
Toda essa área teria as unidades habitacionais transformadas para que se adaptassem às famílias moradoras futuras, após os eventos dos Jogos Olímpicos.
Vazio recreativo: um parque público
O parque público foi concebido como uma área verde com equipamentos de lazer.
No limite oeste, revelam-se as fachadas de fundo dos edifícios históricos da Rua Pedro Alves, possibilitando o estabelecimento de uma nova interface comercial com o parque, gerando animação e podendo ser referência na integração com o entorno.
Local:
Rio de Janeiro, RJ
Data:
2011
Cliente:
Prefeitura do Rio de Janeiro
Área de intervenção:
150.00 m²
Concurso:
Concurso Nacional
Arquitetura e Urbanismo:
VIGLIECCA&ASSOC
Hector Vigliecca, Luciene Quel, Ronald Werner Fiedler, Neli Shimizu, Caroline Bertoldi, Pedro Ichimaru, Kelly Bozzato, Bianca Riotto, Fernanda Trotti, Sergio Faraulo, Paulo Serra, Luci Maie
MAPA
Aldo Lanzi, Andrés Gobba, Diogo Valls, Emiliano Etchegaray, Ken Sei Fong, Luciano Andrades, Martín Pronczuk, Matías Carballal, Mauricio López, Rochelle Castro, Santiago Saettone, Silvio Machado
Fotos:
Leonardo Finotti






















Imagens