Secretaria do Esporte-CE
O novo edifício Fares Cândido Lopes, sede da Secretaria de Esporte do Estado do Ceará e do Departamento de Arquitetura e Engenharia, faz parte da primeira etapa do projeto da Arena Castelão. O complexo, localizado em Fortaleza, Ceará, representa o Nordeste do país como uma das cidades-sede que abrigou a Copa do Mundo da FIFA Brasil 2014™. O estádio também sediou jogos da Copa das Confederações da FIFA Brasil 2013™, ganhando destaque pela celeridade na condução das obras.
O principal objetivo do projeto de reforma do Castelão, além de inseri-lo nos padrões exigidos pela FIFA, era transformá-lo em uma arena multiuso, moderna e autossustentável. Para isso recebeu uma série de novas estruturas, como nova cobertura, novos camarotes, novas cabines de imprensa e remodelação completa das instalações sanitárias e de serviços.
A ideia fundamental foi a incorporação da geografia local na constituição da nova construção. Uma grande plataforma se desenvolve em cota única, evidenciando o desnível do terreno que existe desde as bordas do estádio até os limites do lote. Essa praça pública de escala urbana se configura como preâmbulo de acesso ao estádio e cria sob si um grande espaço coberto.
A maior parte desse espaço é aproveitada como estacionamento e, sua porção final, dividida em dois pavimentos, é transformada no novo edifício institucional.
A construção dá o arremate necessário ao complexo, criando uma frente urbana para a estrutura do embasamento que, por sua vez, sustenta e confere protagonismo ao volume do novo estádio.
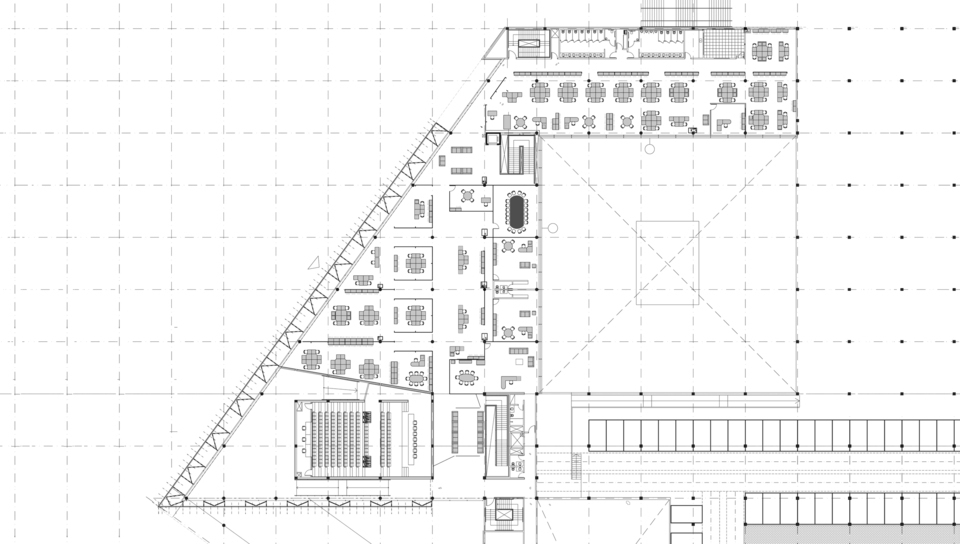
Em sua esquina aguda, uma ausência se faz presente e define o átrio de acesso, também entendido como praça coberta. Daí o usuário é conduzido ao interior do edifício de onde pode seguir até os espaços de trabalho ou dirigir-se ao foyer e o auditório.
O deslocamento entre os dois pisos se resolve por meio de duas escadas e um elevador, complementados por mais duas escadas protegidas. Junto às escadas estão dois conjuntos sanitários que configuram os blocos de serviço e dão o suporte necessário às áreas de escritórios.
Cuidando do equilíbrio térmico e visual, a grande fachada envidraçada é recuada em relação à borda da praça elevada e recebe uma cortina de brises metálicos que controla a entrada da luz natural, ao passo que caracteriza externamente o prédio. Essa estrutura é complementada pela abertura de um pátio interno, de generosas proporções. Compondo com os outros buracos desenhados na praça, esse vazio está preenchido por uma vegetação nativa e faz a interface entre os espaços de trabalho e os estacionamentos, articulando os ambientes e definindo o limite da edificação.
Como consequência de um cuidadoso planejamento do projeto e da obra, todo o prédio está em funcionamento desde o mês de setembro de 2011, abrigando cerca de 600 funcionários das duas secretarias e permitindo que se sigam as intervenções no estádio.
Local:
Fortaleza, CE
Data:
2008-2011
Cliente:
Governo do Estado do Ceará
Área total de intervenção:
230.000 m²
Área construída do edifício da Secretaria:
6.500 m²
Arquitetura e Urbanismo:
VIGLIECCA&ASSOC
Hector Vigliecca, Luciene Quel, Ronald Werner Fiedler, Neli Shimizu, Caroline Bertoldi, Bianca Riotto, Fernanda Trotti, Hernani Paiva, Kelly Bozzato, Luiz Marino, Mayara Christ, Pedro Ichimaru, Rafael Alcantara, Paulo Serra, Luci Maie, Renata Haring.
Construção:
Galvão + Andrade Mendonça
Estrutura de concreto:
MD Engenharia
Estrutura de aço:
Pengec Engenharia e Consultoria
Instalações elétricas e especiais:
Techna Consultoria
Instalações hidrossanitárias:
Fase Engenharia
Instalações de ar-condicionado:
Comaru
Instalações e consultoria acústica:
Audium Áudio e Acústica
Paisagismo:
Rodolfo Geiser Paisagismo e Meio Ambiente
Consultoria de fluxo de multidões:
SDG
Consultoria de esquadrias:
Arqmate Consultoria
Consultoria em conforto térmico:
A. R. Frota Arquitetura
Consultoria para LEED:
Otec
Perspectivas:
Planomotor
Fotos:
Azul Serra














Imagens